
技術參數
|
序號 |
名稱 |
數量 |
材料 |
|
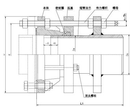
1 |
本體 |
1 |
QT400-15、Q235A、ZG230-450、20 |
|
2 |
密封圈 |
1 |
NBR |
|
3 |
壓蓋 |
1 |
QT400-15、Q235A、ZG230-450、20 |
|
4 |
短管法蘭 |
1 |
Q235A、20、16Mn |
|
5 |
螺柱 |
n |
Q235A、35、1Cr18Ni9Ti |
|
6 |
螺母 |
5n |
Q235A、20、1Cr18Ni9Ti |
|
公稱通徑DN |
管子外徑 |
外形尺寸 |
法 蘭 連 接 尺 寸 |
|||||||||
|
L |
△L |
0.6MPa |
1.0MPa |
|||||||||
|
Dw |
|
D |
D1 |
n-Th |
b |
D |
D1 |
n-Th |
b |
|||
|
65 |
76 |
76 |
400 |
40 |
160 |
130 |
4-M12 |
16 |
185 |
145 |
4-M16 |
20 |
|
80 |
89 |
89 |
190 |
150 |
4-M16 |
18 |
200 |
160 |
8-M16 |
22 |
||
|
100 |
114 |
114 |
210 |
170 |
220 |
180 |
24 |
|||||
|
125 |
140 |
140 |
240 |
200 |
8-M16 |
20 |
250 |
210 |
26 |
|||
|
150 |
168 |
168 |
265 |
225 |
285 |
240 |
8-M20 |
|||||
|
200 |
219 |
219 |
320 |
280 |
22 |
340 |
295 |
28 |
||||
|
250 |
273 |
273 |
375 |
335 |
12-M16 |
24 |
395 |
350 |
12-M20 |
|||
|
300 |
325 |
325 |
420 |
50 |
440 |
395 |
12-M20 |
24 |
445 |
400 |
12-M20 |
28 |
|
350 |
377 |
377 |
490 |
445 |
26 |
505 |
460 |
16-M20 |
30 |
|||
|
400 |
426 |
426 |
540 |
495 |
16-M20 |
28 |
565 |
515 |
16-M24 |
32 |
||
|
450 |
480 |
480 |
595 |
550 |
615 |
565 |
20-M24 |
32 |
||||
|
500 |
530 |
530 |
645 |
600 |
20-M20 |
30 |
670 |
620 |
34 |
|||
|
600 |
630 |
630 |
440 |
755 |
705 |
20-M24 |
780 |
725 |
20-M27 |
36 |
||
|
700 |
720 |
720 |
860 |
810 |
24-M24 |
32 |
895 |
840 |
24-M27 |
40 |
||
|
800 |
820 |
826 |
600 |
60 |
975 |
920 |
24-M27 |
34 |
1015 |
950 |
24-M30 |
44 |
|
900 |
920 |
926 |
1075 |
1020 |
24-M27 |
36 |
1115 |
1050 |
28-M30 |
46 |
||
|
1000 |
1020 |
1026 |
1175 |
1120 |
28-M27 |
1230 |
1160 |
28-M33 |
50 |
|||
|
1200 |
1220 |
1226 |
620 |
1405 |
1340 |
32-M30 |
40 |
1455 |
1380 |
32-M36 |
56 |
|
|
1400 |
1420 |
1428 |
1630 |
1560 |
36-M33 |
44 |
1675 |
1590 |
36-M39 |
62 |
||
|
1600 |
1620 |
1628 |
630 |
1830 |
1760 |
40-M33 |
48 |
1915 |
1820 |
40-M4 |
68 |
|
|
1800 |
1820 |
1828 |
2045 |
1970 |
44-M36 |
50 |
2115 |
2020 |
44-M45 |
70 |
||
|
2000 |
2020 |
2030 |
650 |
2265 |
2180 |
48-M39 |
54 |
2325 |
2230 |
48-M45 |
74 |
|
|
2200 |
2220 |
2230 |
2475 |
2390 |
52-M39 |
60 |
2550 |
2440 |
52-M52 |
80 |
||
|
2400 |
2420 |
2430 |
2685 |
2600 |
56-M39 |
62 |
2760 |
2650 |
56-M52 |
82 |
||
|
2600 |
2620 |
2630 |
750 |
80 |
2905 |
2810 |
60-M45 |
64 |
2960 |
2850 |
60-M52 |
88 |
|
2800 |
2820 |
2830 |
3115 |
3020 |
64-M45 |
68 |
3480 |
3070 |
64-M52 |
94 |
||
|
3000 |
3020 |
3030 |
3315 |
3220 |
68-M45 |
70 |
3405 |
3290 |
68-M56 |
|
||