
|
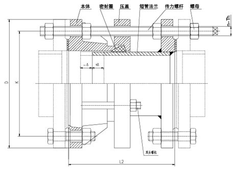
公稱通徑 |
管子外徑 |
外形尺寸 |
伸縮量 |
法蘭連接尺寸 |
||||||
|
Dw |
L |
L1 |
0.6MPa |
1.0MPa |
||||||
|
D |
D1 |
n-d。 |
D |
D1 |
n-d。 |
|||||
|
65 |
76 |
340 |
105 |
50 |
160 |
130 |
4-¢14 |
185 |
145 |
4-¢18 |
|
80 |
89 |
190 |
150 |
4-¢18 |
200 |
160 |
8-¢18 |
|||
|
100 |
108 |
210 |
170 |
220 |
180 |
|||||
|
114 |
||||||||||
|
125 |
133 |
240 |
200 |
8-¢18 |
250 |
210 |
||||
|
140 |
||||||||||
|
150 |
159 |
265 |
225 |
285 |
240 |
8-¢22 |
||||
|
168 |
||||||||||
|
200 |
219 |
320 |
280 |
340 |
295 |
|||||
|
250 |
273 |
370 |
335 |
12-¢18 |
395 |
350 |
12-¢22 |
|||
|
300 |
325 |
350 |
130 |
65 |
440 |
395 |
12-¢22 |
445 |
400 |
|
|
350 |
377 |
490 |
445 |
505 |
460 |
16-¢22 |
||||
|
400 |
426 |
540 |
495 |
16-¢22 |
565 |
515 |
16-¢26 |
|||
|
450 |
480 |
595 |
550 |
615 |
565 |
20-¢26 |
||||
|
500 |
530 |
645 |
600 |
20-¢22 |
670 |
620 |
||||
|
600 |
630 |
755 |
705 |
20-¢26 |
780 |
725 |
20-¢30 |
|||
|
700 |
720 |
860 |
810 |
24-¢26 |
895 |
840 |
24-¢30 |
|||
|
800 |
820 |
590 |
220 |
130 |
975 |
920 |
24-¢30 |
1015 |
950 |
24-¢33 |
|
900 |
920 |
1075 |
1020 |
1115 |
1015 |
28-¢33 |
||||
|
1000 |
1020 |
1175 |
1120 |
28-¢30 |
1230 |
1160 |
28-¢36 |
|||
|
1200 |
1220 |
1405 |
1340 |
32-¢33 |
1455 |
1380 |
32-¢40 |
|||
|
1400 |
1420 |
1630 |
1560 |
36-¢36 |
1675 |
1590 |
36-¢42 |
|||
|
1500 |
1520 |
1730 |
1660 |
- |
- |
- |
||||
|
1600 |
1620 |
1830 |
1760 |
40-¢36 |
1915 |
1820 |
40-¢48 |
|||
|
1800 |
1820 |
2045 |
1970 |
44-¢40 |
2115 |
2020 |
44-¢48 |
|||
|
2000 |
2020 |
2265 |
2180 |
48-¢42 |
2325 |
2230 |
48-¢48 |
|||
|
2200 |
2220 |
2475 |
2390 |
52-¢42 |
2550 |
2440 |
52-¢56 |
|||
|
2400 |
2420 |
2685 |
2600 |
56-¢42 |
2760 |
2650 |
56-¢56 |
|||

廠址:鞏義市西村鎮(zhèn)西村工業(yè)區(qū)
銷售一部:18569951608(同微信)
銷售二部:15093170623(同微信)
聯(lián)系人:任經(jīng)理 QQ:918146976
網(wǎng)址:www.huhuda.net
郵箱:jintongguand@163.com
備案:豫ICP備19011123號-1
